PRET: 219.000 EUR + TVA 19%
DUPLEX 3 CAMERE
DESCRIERE PROPRIETATE
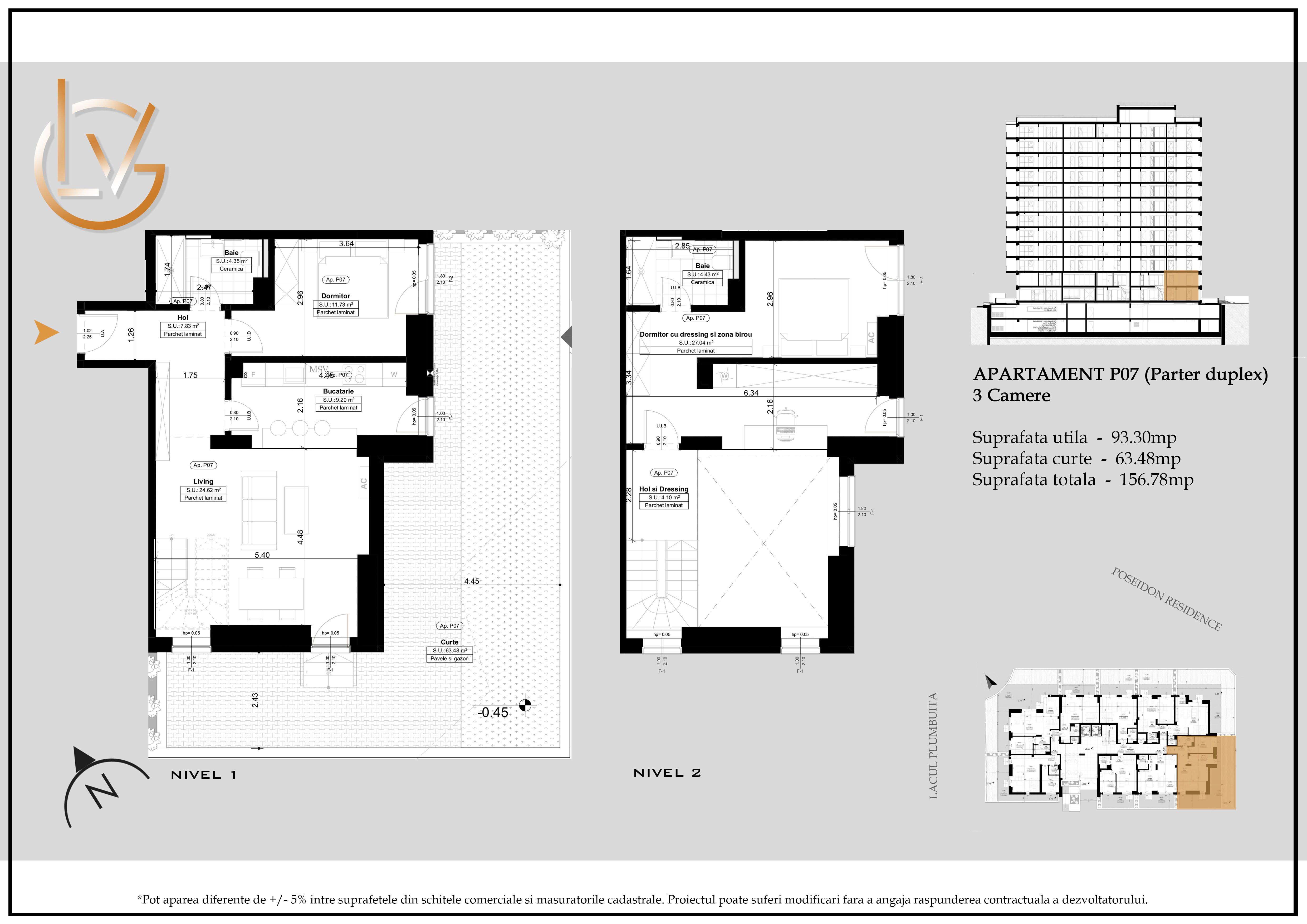
Cauti un apartament interesant de 3 camere, intr-o zona cu multa verdeata, dar totusi sa fie in oras? Va propun un apartament tip duplex de 3 camere generos, cu o suprafata utila de 94 mp si curte de 60 mp, situat pe malul lacului Plumbuita, in apropiere de parcul Plumbuita. Apartamentul tip duplex este situat intr-o constructie noua, cu 80 de apartamente, cu design contemporan, pe structura de beton armat si compartimentari cu BCA, cu finisaje si dotari moderne. Compartimentare: Parter: living spatios, bucatarie inchisa, baie si un dormitor Etaj 1: zona matrimoniala formata din dormitor, baie si dressing Dotari si finisaje: Incalzire in pardoseala – sistem Rehau Placi ceramice in bai si bucatarie – Marazzi Parchet – Alfa Wood Obiecte sanitare – Ideal Standard Ferestre tripan – Salamander, profil de 73 mm, sticla 4 season LowE Aer conditionat – 2 unitati incluse Habitat Fatada termoizolata cu vata minerala de 15 cm Imobilul este finalizat, ceea ce înseamna ca te poti muta imediat! Apartamentul iti va fi predat la cheie. COMISIONUL ESTE 0!
DETALII PROPRIETATE
- LOCALITATE: BUCURESTI
- JUDET: BUCURESTI
- ZONA: PETRICANI
- TIP TRANZACTIE: VANZARE
- TIP APARTAMENT: 3 CAMERE
- COMPARTIMENTARE: DECOMANDAT
- PRET (EURO): 219.000
- VALOARE TVA: 19%
- SUPRAFATA UTILA (MP): 94
- ETAJ: Parter
- LOC DE PARCARE: NU
- GARAJ: NU
- DORMITOARE: 2
- BUCATARII: 1
- BAI: 2
- TERASA: 1
- STATUS CONSTRUCTIE: FINALIZAT
- AN FINALIZARE: 2024
- NR ETAJE CLADIRE: 10
OPTIUNI PROPRIETATE
- SISTEM INCALZIRE: Centrală imobil, Incalzire prin pardoseala
- PERETI: Faianta, Vopsea lavabila
- PODELE: Parchet
- MOBILAT: Nemobilat
- DOTARI: Aer conditionat, Scara interioara
- DOTARI IMOBIL: Interfon, Paza
- UTILITATI GENERALE: Apa, Canalizare, Curent
- AMENAJARE STRAZI: Iluminat stradal, Mijloace de transport in comun
- CONTORIZARE: Apometre, Contor caldura, Contor electric
LOCATIE PROPRIETATE SI CONTACT
